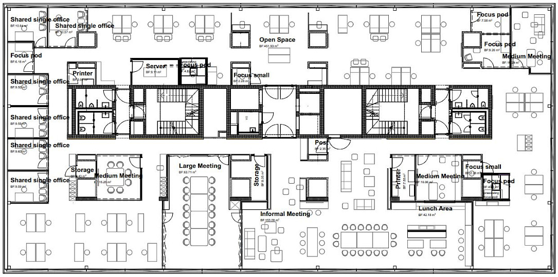
Die Firma NBE Therapeutics AG forscht im Bereich Antikörper und Immun-Onkologie. Zur Deckung des künftigen Arbeitsflächen-Bedarfs wurden im Stücki Areal, dem neuen Balser Life Science Park, zwei Geschosse à 1'600 m2 angemietet und ausgebaut. Die in einer Machbarkeitsstudie bereits vordefinierten Grundrisse sahen im 7.OG geschlossene Labore und im 6.OG eine grosszügige Büro- und Aufenthaltszone vor.
Unter der Leitung von Bakerhicks waren Vischer Architekten für die architektonische Optimierung des Raumlayouts hinsichtlich Nutzeranforderungen, betrieblicher Abläufe sowie sowie technischer und genehmigungsrechtlicher Machbarkeit verantwortlich. Auf der Südseite der Büroetage entfaltet sich eine atrraktive, mit Parkettböden und Akustikbafflen materialisierte Co-working-Zone, die sich vor allem für kleinere, informelle Meetings eignet. Insbesondere im Laborbereich waren erhöhte Anforderungen bezüglich Schallschutz, Brandschutz und Hygienestandards zu erfüllen. Während der Realisierung konzentrierten Vischer Architekten sich auf die Koordination, Qualtiätssicherung und Begleitung des ausführenden TU Halter AG.












