Nach einem gewonnenen Wettbewerb hatten Vischer Architekten das gesamte Areal der Kaserne Liestal geplant und in den Jahren 2000 bis 2005 realisiert.
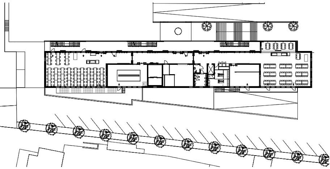
Im Ursprungskonzept war für das Erdgeschoss des Dienstgebäudes eine Nutzung mit zwei getrennten Küchen und zwei Essräumen für zwei verschiedene Truppen vorgesehen. Dies entsprach nicht mehr den aktuellen Bedürfnissen. Daher wurde das neue Raumprogramm auf eine einzige Grossküche für 500 Mahlzeiten pro Tag ausgelegt, mit einem Abwaschraum und Nebenräumen.
Um mehr Platz für Küchenfunktionen zu generieren, wurde der mittlere Teil der bestehenden Gangzone abgetrennt. Dadurch ergab sich gleichzeitig eine gewisse Entflechtung der Verkehrswege zwischen "Essen" und "Kochen". Für die Anlieferung vom Innenhof her wurde ein Vordach mit Oblicht angebaut, welches gestalterisch mit der bestehenden Architektur verschmilzt. Der Zugang zu den Essräumen erfolgt jetzt direkt vom Kasernenplatz her durch zwei separate neue Schiebetüren.
Um den Kantinenbetrieb auch während der etwa einjährigen Bauzeit aufrecht zu erhalten, stellte die Armee auf dem Kasernenplatz mobile Küchensysteme (MVS) bereit. Ausserdem wurde ein provisorischer Essraum eingerichtet.










