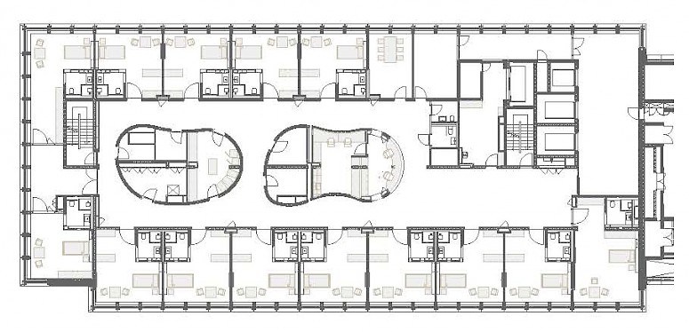
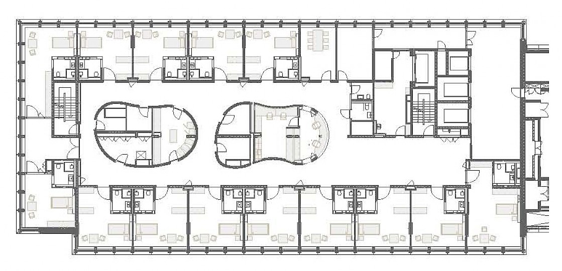
Seit 1999 koordinieren Vischer AG Architekten + Planer die bauliche Entwicklung der Merian Iselin Klinik, setzen diese um und sind in die strategische Planung involviert, um den Klinikbetrieb an aktuelle Nutzungsanforderungen anzupassen. Neuester Eingriff ist der Umbau des Westtraktes mit geschossweisem Rückbau (EG bis 4. OG) bis auf die Grundstruktur und eine Vergrösserung der Betriebsfläche. Diese umfasst den Ausbau der Bereiche Sterilisation und Intensivüberwachungspflege, einen neuen Operationsraum und eine neu hinzugekommene Privatstation, bei der eine Balance zwischen dem geforderten hohen Ausbaustandard (vergleichbar mit dem eines Spitzenhotels) und der Pragmatik einer Klinik-Infrastruktur zu finden war. Unter Beibehaltung des vorhandenen Rasters erfolgte zugleich die Erneuerung der Fassade - sowohl am West- wie auch am Osttrakt - in Kombination mit energetischen Verbesserungen.













