Die historischen Räumlichkeiten wurden durch Vischer Architekten AG auf sensible und denkmalschutzgerechte Weise an die aktuellen Nutzungsanforderungen angepasst.
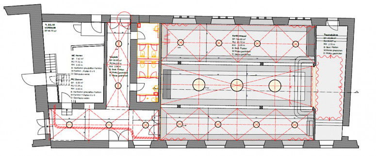
Beim sogenannten "Klosterstübli" wurde die Eingangssituation durch einen verglasten Windfang ersetzt, welcher einen neuen Abschluss im Dachraum hat. Ausserdem wurde ein Bereich, welcher als Garage diente, neu zu Garderoben mit Sanitäranlagen ausgebaut. An der gegenüberliegenden Sakristei wurde ein spezieller, seitlich aufklappbarer, Glas-Metallabschluss in die vorhandene Türöffnung eingepasst. Im Kartäusersaal wurden Wand- und Deckenholztäfer ersetzt, sowie eine Akustikdecke montiert. Für Events wurden parallel dazu die Veranstaltungstechnik (Licht und Ton) sowie die Toilettenräume erneuert.















